新乡市康达水处理阀门厂
联 系 人:赵先生
567彩票网咨询电话:13069356646
567彩票网公司地址:河南省新乡市获嘉县亢村镇工业园区阀门新城南3号
567彩票网 ·工作原理
567彩票网 使用前真空罐内须加满水,当罐内的水被水泵吸出,罐内产生负压(真空)后,由于大气压的作用,蓄水池内的水通过吸水管进入真空罐,通过水泵源源不断的供水。
567彩票网 · 特点及使用范围
真空引水罐使用于无自吸功能的下吸式(水低泵高)水泵,LZKG系列真空引水罐结构独特,真空度高,从而保证了水泵较高的工作效率,式代替真空引水泵的***佳选择。
· 容积的确定可通过下列公式计算
(L+H)×S≤0.14V或V≥7(L+H)×S
式中L――吸水管垂直高度(吸水管垂直高度不大于6米)与水平长度之和;
H――真空引水罐高度;
S――吸水管截面积;
567彩票网 V――真空引水罐总容积。
· 使用方法
1.按图连接吸水管、真空罐、水泵。
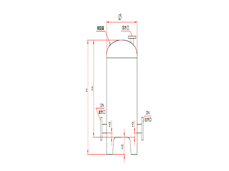
567彩票网 2.松开罐上方的铜旋塞,并打开罐上方加水口法兰盲板,将清水加入罐内。当铜旋塞有稳定的水流出后,紧固法兰盲板,并旋紧铜旋塞。
3.确认无漏水处后,即可启动水泵,投入正常使用.


567彩票网 设备操作流程
1一般规定
567彩票网 1.1 水泵的操作人员必须了解所使用水泵的构造、性能、用途,熟悉安全操作和技术保养规程。
1.2水泵必须有专人操作,并且对水泵的安全使用和正确保养负有全面责任。
567彩票网 1.3 操作人员必须按保养规程要求,定期做好水泵的清洁、润滑和调整工作(拧紧连接螺栓),使水泵经常保持良好的工作条件。
567彩票网 1.4应经常对电气设备进行检查和定期保养,保证绝缘良好安全可靠。
2起动前准备
567彩票网 2.1用手拔转风扇,叶轮应无卡摩现象,转动灵活。
2.2引水罐水量检查,完全开启引水罐注水孔及排气孔阀门,完全打开水泵机组进水口阀门,完全关闭水泵机组出水口阀门,启动补水泵对引水罐进行注水,水位上升至充满引水罐,此时关闭补水泵,检查完毕。
2.3打开进口阀门,打开排气阀使水充满整个泵腔,然后关闭排气嘴。
567彩票网 2.4起动前应对水泵和抽水装置管路阀门作全面仔细的检查,不得有漏水、漏气现象。
2.5应先用手盘动泵几圈以使润滑水进入机械密封端面。
567彩票网 2.6点动电机,确定转向是否正确,这样方可起动。
567彩票网 3起动与运行
567彩票网 3.1全开进口阀门,关闭吐出管路上的阀门。
567彩票网 3.2接通电源,当泵达到正常转速后,再逐渐打开吐出管路上的阀门,并调节到所需要的工况。
3.3必须注意观察仪表读数、电机、轴承升温、滴漏和升温以及泵的振动和杂音等是否正常,正常时机械密封滴漏为3滴每分,温度小于75℃,如果发现异常情况应及时处理。
3.4打开回水管阀门,保证有充足的水持续回流至负压引水罐内,在停机保压过程中二次启动时有水可以充满泵体,有效避免水泵无水空转 。
4 停 机
4.1逐渐关闭吐出管路上的阀门,切断电源。
4.2关闭进口阀门。
4.3如环境温度低于0℃,应将泵内水放出,以免冻裂水泵。
4.4如长期停止使用,应将泵拆卸清洗上油(3#锂基脂黄油),包装保管。
5泵的维护与保养
567彩票网 5.1运行中的维护与保养
5.1.1进水管路必须高度密封,不能漏水、漏气。
567彩票网 5.1.2禁止泵在汽蚀状态下长期运行,泵在运行过程中***高温度不超过90摄氏度。
5.1.3禁止泵在大流量工况运行时,电机超电流长期运行。
5.1.4定时检查运行中的电机电流值,尽量使泵在设计工况范围运行内运行,以保证泵在***高效率点运转,获得***大的节能效果。
5.1.5泵在运行中应有专人看管,以免发生意外。
5.1.6泵每运行500小时,应对轴承进行加油,加注3#锂基脂黄油。
567彩票网 5.1.7泵长期运行后,由于机械磨损,使机组噪声及振动增大时,应停车检查,必要时可更换易损零件及轴承,机组大修期一般为一年。
5.1.8泵在冬季运行使用时,应做好保温措施,防止冻裂。
5.2机械密封的维护与保养
5.2.1机械密封润滑液应清洁无固体颗粒。
5.2.2严禁机械密封在干磨情况下工作。
5.2.3起动前应盘动泵(电机)几圈,以免突然起动造成机械密封断裂损坏。
初次使用(大修后)设备操作步骤
步骤1:冲洗引水罐
完全打开引水罐排污口堵头,开启注水孔及排气孔阀门,启动补水泵对引水罐进行注水冲洗,1分钟后关停补水泵,关闭排污口堵头,并确保排污口堵头密封良好。
步骤二2:冲洗水泵机组进水口
开启引水罐注水孔及排气孔阀门,完全打开水泵机组进水口阀门,完全关闭水泵机组出水口阀门,拆下进水口末端法兰挡板,启动补水泵对引水罐进行注水,水流经过泵机组的进水口即可完成清洗工作,冲洗完毕后关闭补水泵,关闭法兰挡板,并确保法兰挡板密封良好。
567彩票网 步骤3:引水罐注水及水泵机组排气同时进行
567彩票网 完全开启引水罐注水孔及排气孔阀门,完全打开水泵机组进水口阀门,完全关闭水泵机组出水口阀门,拧下水泵泵体中部的排气口螺钉,启动补水泵对引水罐进行注水,当水位上升时,排气口有空气排出,之后有水流均匀溢出,此时拧上排气口螺钉,完成排气工作。
567彩票网 水位上升充满引水罐水时,引水罐排气孔有水溢出,此时关闭补水泵,关闭引水罐注水孔及排气孔阀门,完成注水工作。
567彩票网 以上工作完成后,可按照《设备操作流程》投入使用。
本文网址: http://szyuetu.com/zkysg/53.html
营业执照